225k Standalone Snubbing Unit 225-1
| Item # | Qty. (ea.) | Description |
|---|---|---|
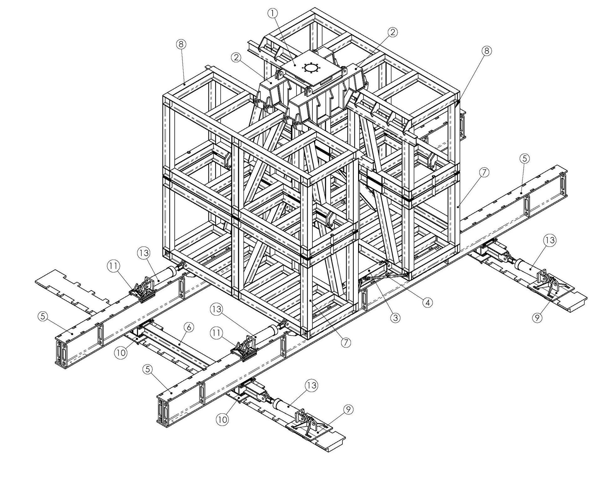
| 1 | 1 | Jack Assembly, 225k, 5 slip Design, HUSCO directional control, telescoping HP Tubing Guide. BORE: 7-1/16" (179mm) STROKE Capacity: 10 ft (3048 mm) MAX Lift: 235,500 lbf (1047 kN), MAX SNUB: 120,105 lbf (534 kN) |
| 2 | 1 | 225k Rotary Assembly. Torque Capacity: 0 - 6,600 lb-ft (0 - 8,948 Nm) |
| 3 | 6 | Power Slip, 225k Series 5.50. Pipe Range: 1.66 through 5.50 inch. |
| 4 | 1 | Workbasket Assembly with Control Consoles (function jack, slips, BOP, dual cb winch, rotary), emergency escape poles |
| 5 | 1 | Workbasket Riser |
| 6 | 1 | Counterbalance (CB) Winch, dual drum, 750 lb. SWL |
| 7 | 1 | Gin Pole, Telescoping, with powered Tong Suspension and positioning arm |
| 8 | 1 | HPU, Diesel-Hydraulic, "Rig-Safe" configuration suitable for offshore US GOM. Hydraulic circuits for jack, cb winch, rotary, BOP, and Aux systems. |
| 9 | 1 | Fuel Tank, 290 gal. (1098 liter) |
| 10 | 1 | Accumulator rack, 40 gal. |
| 11 | 1 | Hose Basket |
| 12 | 1 | Hose Kit, 100 foot |
| 13 | 1 | Work window assembly, 225k rated. 7-1/16" bore (upgradable to larger bore) |
| 14 | 1 | Work window Safety Stand |
| 15 | 1 | Drop Deck Trailer, Configured with stands to accommodate QJ (Quick Jack) mounting of the preassembled 225k snubbing unit |
| 16 | 1 | 75' hose extension package |
| 17 | 1 | Tool House 8' x 8' Conex |
* High Level equipment list, additional details available upon request.
Note: BOPs not included. See Skidding Systems, Blowout Preventers & Iron Horse Package for more information.
Additional HPU is available.
340K Standalone Snubbing Unit 340-1
| Item # | Qty. (ea.) | Description |
|---|---|---|
| 1 | 1 | Jack Assembly, 345k, 5 slip Design, HUSCO directional control, telescoping HP Tubing Guide. BORE: 11" (279mm) STROKE Capacity: 10 ft (3048 mm) MAX Lift: 339,120 lbf (1512 kN), MAX SNUB: 148,365 lbf (660 kN) Structural Load Rating: 460k (increases impact load capacity and accommodates future upgrade to 460k if desired) |
| 2 | 1 | 340k Rotary Assembly, 3 motor, selectable to 2 motor. Torque Capacity: 0 - 12,000 lb-ft (0 - 16,269 Nm) 22K rotary is available but not included |
| 3 | 4 | Power Slip, 340k Series. Pipe Range: 1.66 through 7.625 inch. |
| 4 | 1 | Workbasket Assembly with Control Consoles (function jack, slips, BOP, dual cb winch, utility hoist, rotary), emergency escape poles |
| 5 | 1 | Workbasket Riser |
| 6 | 1 | Counterbalance (CB) Winch, dual drum, 3000 lb. SWL |
| 7 | 1 | Gin Pole, Telescoping with mounting for utility hoist and counterbalance winch |
| 8 | 1 | Tong Post |
| 9 | 1 | HPU, Diesel-Hydraulic, "Rig-Safe" configuration suitable for offshore US GOM. Hydraulic circuits for jack, counterbalance winch, rotary, BOP, and Aux systems. |
| 10 | 1 | Fuel Tank, 750 gal. (2838 liter) |
| 11 | 1 | Accumulator Rack, 40 gal. |
| 12 | 1 | Hose Basket |
| 13 | 1 | Hose Kit, 100 foot |
| 14 | 1 | Work window assembly, 340k rated. 11" bore top and 13 5/8" bottom plate |
| 15 | 1 | Work window Safety Stand |
| 16 | 1 | 75' hose extension package |
* High Level equipment list, additional details available upon request.
Note: Tool containers and BOPs not included, but available. See Skidding Systems, Blowout Preventers & Iron Horse Package for more information.
Additional HPU is available.
340K Standalone Snubbing Unit 340-2
Call for Pricing with Options
DNV Class I Div II, Skidded, suitable for high pressure live well and HWO service on land and/or offshore well sites. Compatible with Iron Horse Package for large casing workovers & snubbing.
Most recent major overhaul works – 2022
Unit 340-2 mounted on a Skidding System (separate component). See Skidding Systems for more details.
| Item # | Qty. (ea.) | Description |
|---|---|---|
| 1 | 1 | Jack Assembly, 340k, 4 slip Design, HUSCO directional control, telescoping HP Tubing Guide. BORE: 14.25" STROKE Capacity: 10 ft (3048 mm) MAX Lift: 339,120 lbf (1512 kN), MAX SNUB: 148,365 lbf (660 kN) Structural Load Rating: 460k |
| 2 | 1 | 340k Rotary Assembly, 4 motor, selectable to 2 motor. Torque Capacity: 11,000 - 22,000 lb-ft smaller hi-speed motors are included |
| 3 | 4 | Power Slip, 340k Series. Pipe Range: 1.66 through 7.625 inch. |
| 4 | 1 | Workbasket Assembly with Control Consoles (function jack, slips, dual counterbalance winch, utility hoist, rotary), emergency escape poles |
| 5 | 1 | Workbasket Riser |
| 6 | 1 | Counterbalance (CB) Winch, dual drum, 3000 lb. SWL |
| 7 | 1 | Gin Pole, Telescoping with five ton utility winch |
| 8 | 1 | Tong cart |
| 9 | 1 | HPU, Diesel-Hydraulic, Class1 Div2 configuration. Hydraulic circuits for jack, counterbalance winch, rotary, BOP, and Aux systems. |
| 10 | 1 | Fuel Tank, 750 gal. (2838 liter) |
| 12 | 3 | Hose Basket 4'x4', 8'x8', 8'x20' |
| 13 | 1 | Hose Kit, 100 foot |
| 14 | 1 | Work window assembly, 340k rated. 14.25" bore |
| 15 | 1 | Work window Safety Stand |
| 16 | 1 | 75' hose extension package |
* High Level equipment list, additional details available upon request.
Note: Tool containers and BOPs not included, but available. See Skidding Systems, Blowout Preventers & Iron Horse Package for more information.
Additional HPU is available.
340K Standalone Snubbing Unit 340-3
| Item # | Qty. (ea.) | Description |
|---|---|---|
| 1 | 1 | Jack Assembly, 345k, 4 slip Design, HUSCO directional control, telescoping HP Tubing Guide. BORE: 11" (279mm) STROKE Capacity: 10 ft (3048 mm) MAX Lift: 339,120 lbf (1512 kN), MAX SNUB: 148,365 lbf (660 kN) Structural Load Rating: 340 |
| 2 | 1 | 340k Rotary Assembly, 4 motor, selectable to 2 motor. Torque Capacity: 22,000 - 11,000 lb-ft |
| 3 | 1 | Power Slip, 340k Series. Pipe Range: 1.66 through 7.625 inch. |
| 4 | 1 | Workbasket Assembly with Control Consoles (function jack, slips, BOP, dual counterbalance winch, utility hoist, rotary), emergency escape poles ALL HYDRAULIC CONSOLES WILL REQUIRE REFURB |
| 5 | 1 | Workbasket Riser with walk around |
| 6 | 1 | Counterbalance (CB) Winch, dual drum, 3000 lb. SWL |
| 7 | 1 | Gin Pole will have to manufactured |
| 8 | 1 | Tong Post |
| 9 | 1 | HPU, Diesel-Hydraulic, "Rig-Safe" configuration suitable for offshore US GOM. Hydraulic circuits for jack, counterbalance winch, rotary, BOP, and Aux systems. |
| 10 | 1 | Fuel Tank, 750 gal. (2838 liter) |
| 12 | 1 | Hose Basket |
| 13 | 1 | Hose Kit, 100 foot |
| 14 | 1 | Work window assembly, 340k rated. 11" bore |
| 15 | 1 | Work window Safety Stand |
| 16 | 1 | 75' hose extension package |
* High Level equipment list, additional details available upon request.
Note: Tool containers and BOPs not included, but available. See
Skidding Systems,
Blowout Preventers &
Iron Horse Package for more information.
460K Standalone Snubbing Unit 460-1
| Item # | Qty. (ea.) | Description |
|---|---|---|
| 1 | 1 | 4 leg 460K HWO Jack with Husco pilot control |
| 2 | 3 | slip bowls |
| 3 | 1 | 10k lbs rated gin pole with mounting accessories |
| 4 | 1 | fail safe 10k lbs main winch |
| 5 | 1 | double drum 5k counterbalance winch with failsafe hydraulic brakes 6. 1-work basket |
| 6 | 1 | operators console |
| 7 | 1 | counterbalance and main control manifold |
| 8 | 1 | work window |
| 9 | 1 | jack work platform |
| 10 | 1 | window work platform |
| 12 | 3 | ladders |
| 13 | 1 | tong cart with hydraulic controls |
| 14 | 1 | Tool house with an assortment of tools and spare parts |
| 15 | 2 | Hydraulic power units |
| 16 | 1 | 22K rotary |
| 17 | 1 | air and water manifold |
| 18 | 1 | Cargo Baskets |
| 19 | 1 | Fuel Tank |
| 20 | 1 | Hose Package |
* High Level equipment list, additional details available upon request.
Note: Tool containers and BOPs not included, but available. See
Skidding Systems,
Blowout Preventers &
Iron Horse Package for more information.
Iron Horse Package
| Item # | Qty. (ea.) | Description |
|---|---|---|
| 1 | 4 | BJ 350 Ton Spiders |
| 2 | 1 | 21-1/4 Window with slider plates |
| 3 | 1 | Travelling Plate |
Skidding Systems
| Item # | Qty. (ea.) | Description |
|---|---|---|
| 1 | 2 | 1,000,000 pound rated Hydraulic skidding system with 1 set of pony boxes. Equipped with BOP trollies |
Blowout Preventers
Call for Pricing & Configurations
Blowout Preventer with data tag.
| Item # | Qty. (ea.) | Description |
|---|---|---|
| 1 | 2 | QTY2 11" 10 K workover stacks including 4-BOPs, 2 BOPs with large bore Tandem boosters. QTY2 11" 5K annular BOPs, QTY 2 Bell nipples, 2 sets blind shear rams with current COCs. Both stacks currently at AXON in Queue for recertification Total 4 singles 1 double and 2 annulars. All components except bell nipples manufactured new by NOV. |
| 2 | 1 | 4 Ram 7 1/16" 15K BOP quick Stack with Annular, safety walk around, lifting flange, C section and bleed off assembly. Trailer with pivot flange included |












